Informations générales
- ref : 203
- Honoraire : 840 €
- Surface habitable :120 m2
- Surface carrez : 120 m2
- Nombre d'étage : 0
- Type de cuisine : aucune
- Année de construction : 2025
- Four
- Lave vaisselle
- Micro onde
Descriptif
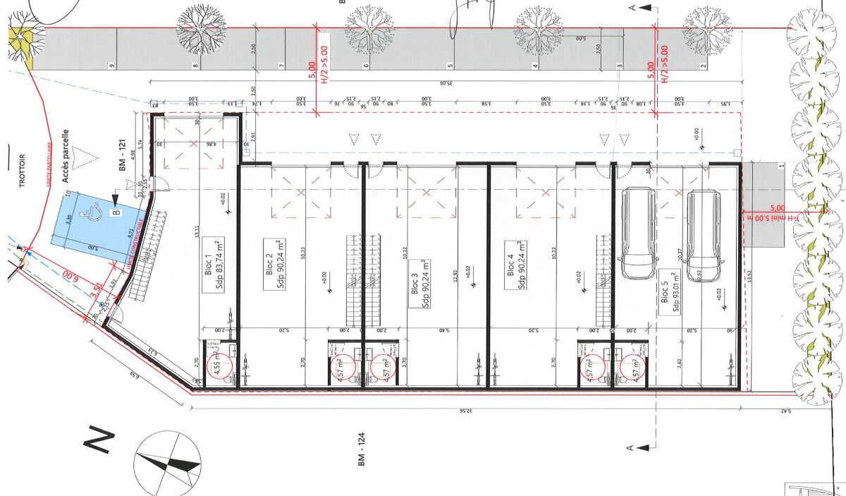
Nous vous proposons sur la zone d'activités Saint-Charles proche de l'avenue Julien Panchot, Rue des Inventeurs ; Entrepôt avec mezzanine à construire, livraison fin 2025 / début 2026. La construction se composera de 5 locaux attenants les uns aux autres. Le Bloc 1 se composera d'un entrepôt de 70m2 en rez-de-chaussée avec sanitaires et mezzanine aménageable de 20m2, loyer de 950 euros plus les charges. Les Bloc 2, 3 et 4 se composeront d'une surface au sol de 90m2 avec sanitaires et 30 m2 de mezzanine aménageable, loyer 1200 euros plus charges. Le Bloc 5 aura une surface au sol de 93m2 pour un loyer de 900 euros plus charges. Porte sectionnelle, porte PVC et fenêtres au niveau de la mezzanine. Deux places de parking par local. Bail commercial 3/6/9 - Rédaction du bail de 840 euros TTC. Contactez-nous pour plus de renseignements ; Agnès Dumas Immobilier 06 48 24 39 79.
Les informations sur les risques auxquels ce bien est exposé sont disponibles sur le site Géorisques : www.georisques.gouv.fr 1


